HIM LAM ORIANA SHOW GALLERY

Location: Ho Nai District, Bien Hoa City, Dong Nai

Service: Conceptual Interior Design

Status: In progress

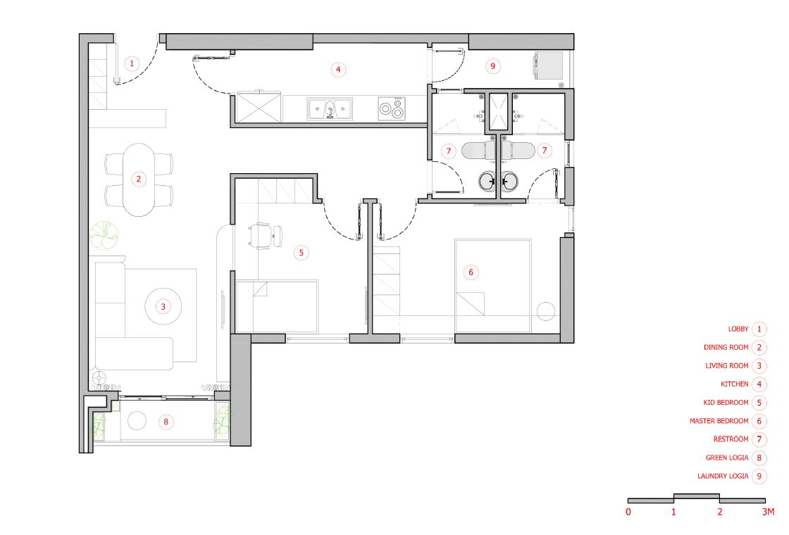
The interior of the Him Lam Oriana project model apartment is characterized by striking oak panels on the white background of the floor and ceiling. The entrance is slightly separated by a low shoe cabinet, creating a transitional space between inside and outside the apartment. The glass panel on the wall to hang the TV is the main feature of the main space, creating a connection between the living room and the baby's bedroom.